作者: 永乐高030net发表时间:2018-05-08 12:32:54浏览量:4764【小中大】
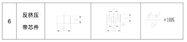
冷镦的变形程度通常用材料变形前后的断面镦粗或缩减率 ε 来表示。典型零件冷镦变形程度 ε 计算公式见表 2.3-1:
表 2.3-1 典型零件冷挤压变形程度计算公式表
不同材质的材料其一次变形的极限量称为许用变形程度〔ε〕。常用不同材质的许用变形程度见表 2.3-2:
表 2.3-2 常用不同材质的许用变形程度表




扫一扫关注官方微信
0755-89575525